Espace propriétaire
fr

Votre recherche

Châteaugiron (35410)

6 pièces - 111 m²

TERRAIN DE 336 M² + MAISON À BATIR DE 111 M² - CENTRE VILLE DE CHÂTEAUGIRON !

360 000 €
Ref : 1383*
A propos de ce bien

NOUVEAU PROJET DE CONSTRUCTION SUR CHATEAUGIRON !

Vous êtes à la recherche d'un projet immobilier dans une ville dynamique et familliale à proximité des commerces et des commodités ? Nous avons ce qu'il vous faut !

Le Cabinet Yvanez Immobilier a le plaisir de vous présenter ce projet situé en plein cœur de Châteaugiron et élaboré par un maître d'oeuvre renommé sur notre secteur.

Cette construction saura vous séduire pas son emplacement, son design et ses volumes.

Ses atouts majeurs : 4 chambres, Pièce de vie de plus de 40 m², stationnement, garage, jardin et proximité immédiate des commodités.

L'ensemble de ce projet a été intégralement pensé pour vous créer un lieu de vie confortable et acceuillant.

Les projections réalisées sont une base de travail. Elles vous permettront d'imaginer et d'affiner les aménagements au regard de vos propres besoin.

Contactez-nous pour obtenir des informations complétaires, par téléphone au 02 99 37 26 74 ou par mail : cabinet.yvanez@gmail.com

PRIX HAI DU TERRAIN DE 336 M² : 111 850 euros (inclus 5850 euros d'honoraires d'agence) + coût de construction de la maison à déterminer selon projet.

Les informations sur les risques auxquels ce bien est exposé sont disponibles sur le site Géorisques : www.georisques.gouv.fr

Descriptif de ce bien
Général
Code postal 35410
Nombre de chambre(s) 4
Nombre de pièces 6
Nombre de niveaux 2
Détails
Nb de salle de bains 2
Cuisine Américaine
Mode de chauffage Pompe à chaleur
Type de chauffage TRAD_TYPE_CHAUFF_AIR_EAU
Format de chauffage Individuel
Murs mitoyens 1
Nombre de garage 1
Exposition Est-Ouest
Composition
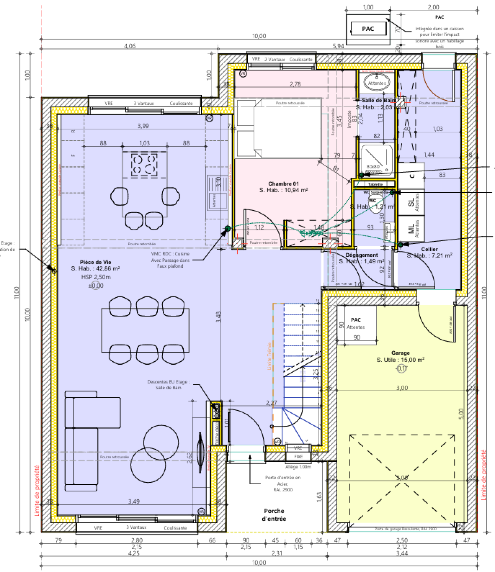
Rez de chaussée
cellier 7.21 m²

chambre 10.94 m²

dégagement 1.49 m²

salon/sejour 42.86 m²

salle de bain 2.03 m²

WC 1.21 m²

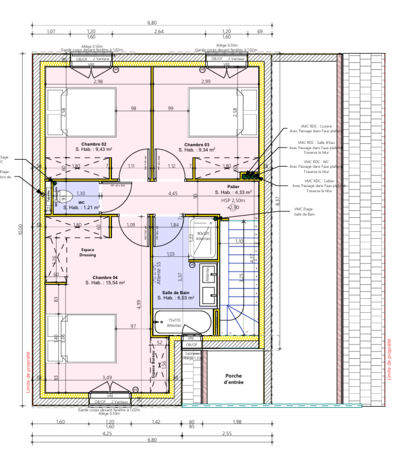
Etage 1
chambre 9.43 m²

chambre 9.34 m²

chambre 15.54 m²

palier 4.33 m²

salle de bain 6.03 m²

WC 1.21 m²

Financier
Prix de vente honoraires TTC inclus 360 000 €
Energie
DPE GES
Autour du bien
  • Commerces et santé
  • Loisirs
  • Ecoles
  • Transports
  • Pratique
Contacter pour ce bien
L'agence
Téléphone 02 99 37 26 74
Adresse
3 place des Gâtes 35410 Châteaugiron

* Champ obligatoire

Les informations recueillies sur ce formulaire sont enregistrées dans un fichier informatisé par La Boite Immo agissant comme Sous-traitant du traitement pour la gestion de la clientèle/prospects de l'Agence / du Réseau qui reste Responsable du Traitement de vos Données personnelles. La base légale du traitement repose sur l'intérêt légitime de l'Agence / du Réseau. Elles sont conservées jusqu'à demande de suppression et sont destinées à l'Agence / au Réseau. Conformément à la loi « informatique et libertés », vous disposez des droits d’accès, de rectification, d’effacement, d’opposition, de limitation et de portabilité de vos données. Vous pouvez retirer votre consentement à tout moment en contactant directement l’Agence / Le Réseau. Consultez le site https://cnil.fr/fr pour plus d’informations sur vos droits. Si vous estimez, après avoir contacté l'Agence / le Réseau, que vos droits « Informatique et Libertés » ne sont pas respectés, vous pouvez adresser une réclamation à la CNIL. Nous vous informons de l’existence de la liste d'opposition au démarchage téléphonique « Bloctel », sur laquelle vous pouvez vous inscrire ici : https://www.bloctel.gouv.fr Dans le cadre de la protection des Données personnelles, nous vous invitons à ne pas inscrire de Données sensibles dans le champ de saisie libre.
Ce site est protégé par reCAPTCHA, les Politiques de Confidentialité et les Conditions d'Utilisation de Google s'appliquent.

Découvrir nos outils