Espace propriétaire
fr

Votre recherche

Vendu
Domloup (35410)

6 pièces - 150 m²

VENDU ! Maison neuve de 150m² avec 4 chambres, garage et jardin

Nous consulter
Ref : 0983
A propos de ce bien

VENDU SUR LA COMMUNE DE DOMLOUP ! Vous êtes à la recherche d'un terrain à quelques minutes des commodités, au calme, proche de Rennes et Cesson-Sévigné. Le Cabinet Yvanez Immobilier vous propose un projet de construction qui arrive à son terme, d'une maison de près de 150 m² (surface maximum possible sur ce terrain), comprenant au rez-de-chaussée une entrée avec placard, une vaste et lumineuse pièce de vie de 60 m², des WC et une suite parentale avec dressing et salle d'eau. À l'étage, un palier desservant trois chambres, une salle d'eau et des WC et une buanderie. Pour plus d'informations, merci de bien vouloir prendre contact avec votre agent immobilier Pauline YVANEZ : 02.99.37.26.74 / 06.58.71.80.82/ cabinet.yvanez@gmail.com

Descriptif de ce bien
Général
Code postal 35410
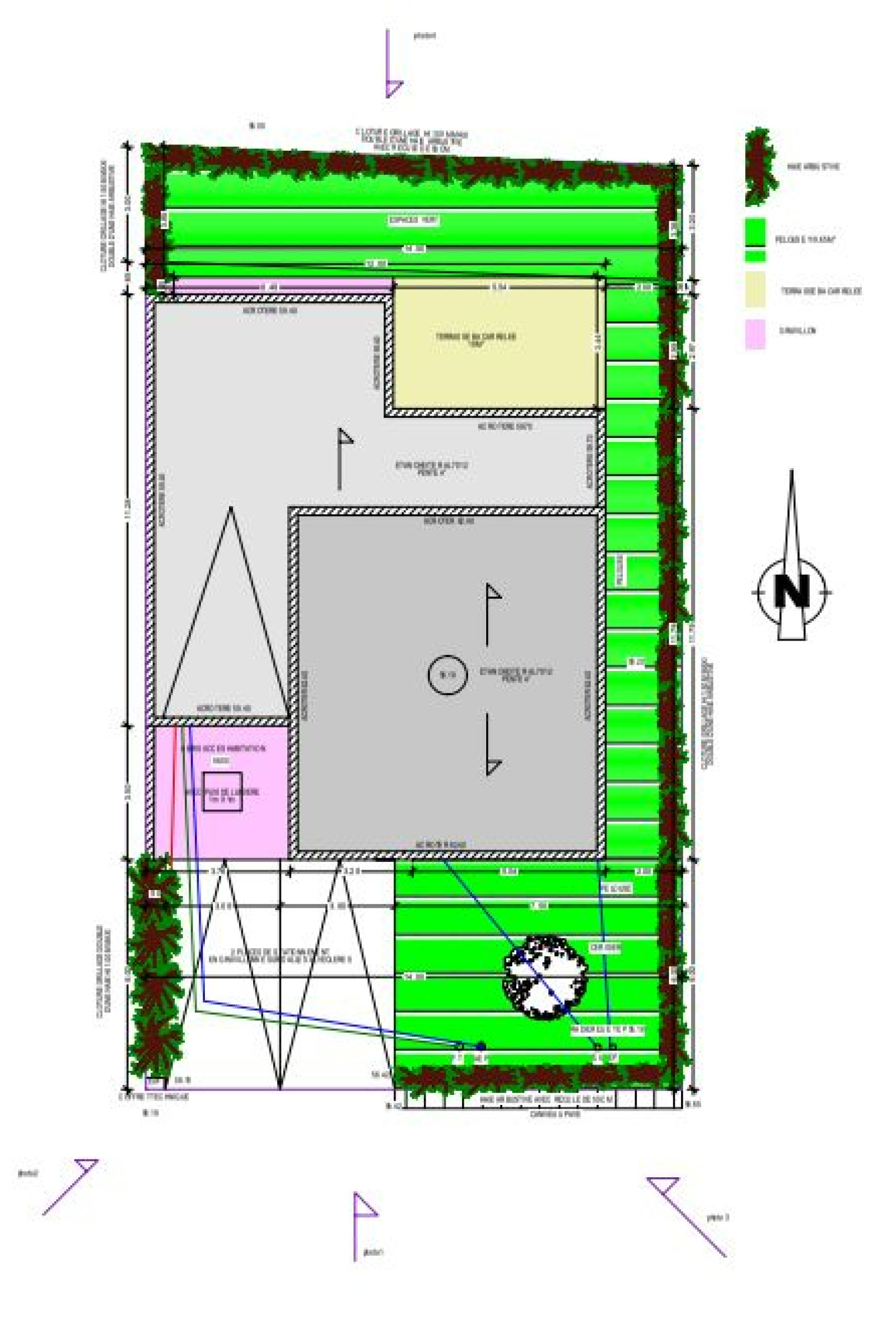
surface terrain 341 m²
Nombre de chambre(s) 4
Nombre de pièces 6
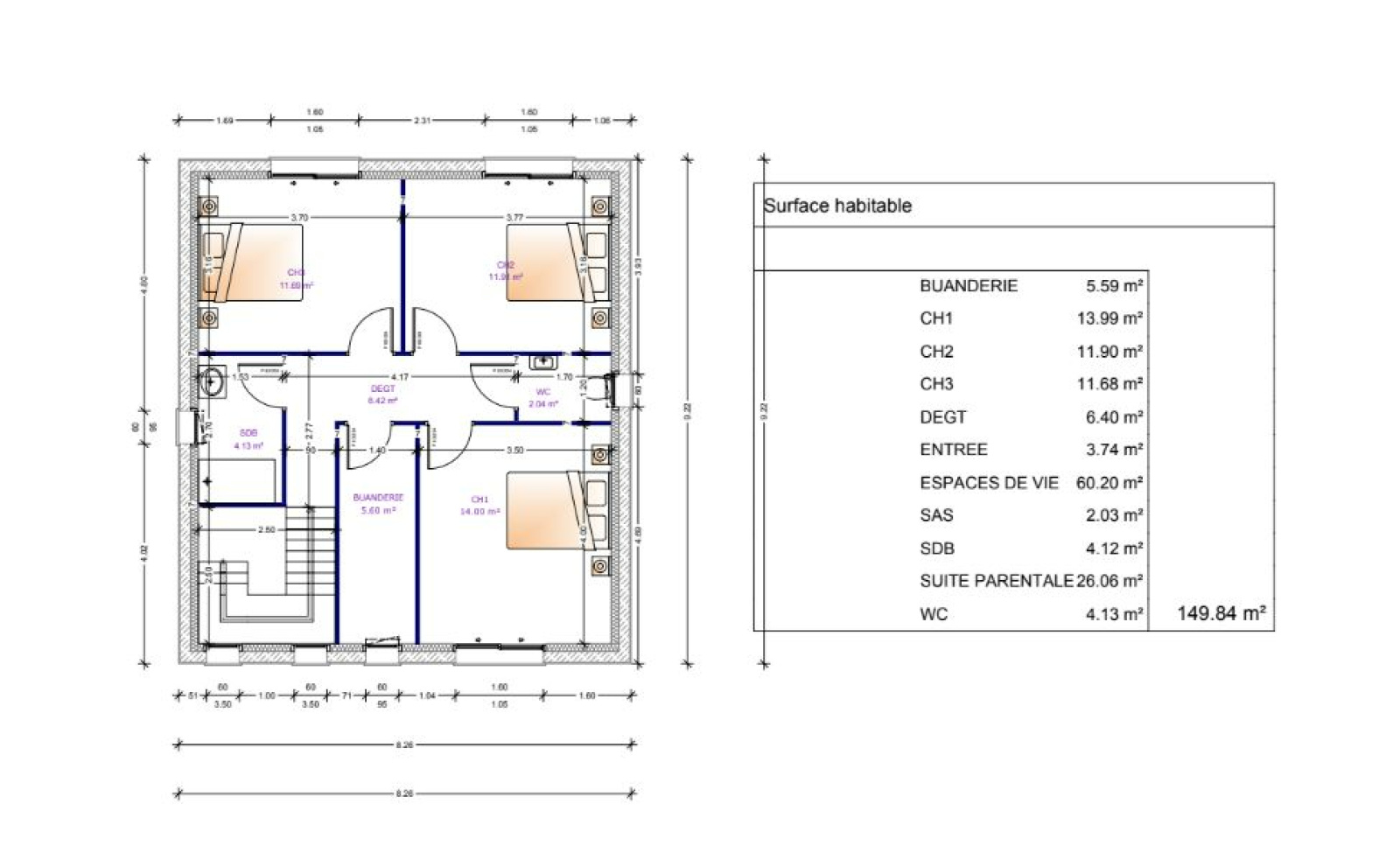
Nombre de niveaux 2
Détails
Nb de salle d'eau 2
Mode de chauffage Autre
Type de chauffage Autre
Format de chauffage Individuel
Terrasse OUI
Nombre de parking 1
Exposition SUD-NORD
Année de construction 2022
Composition
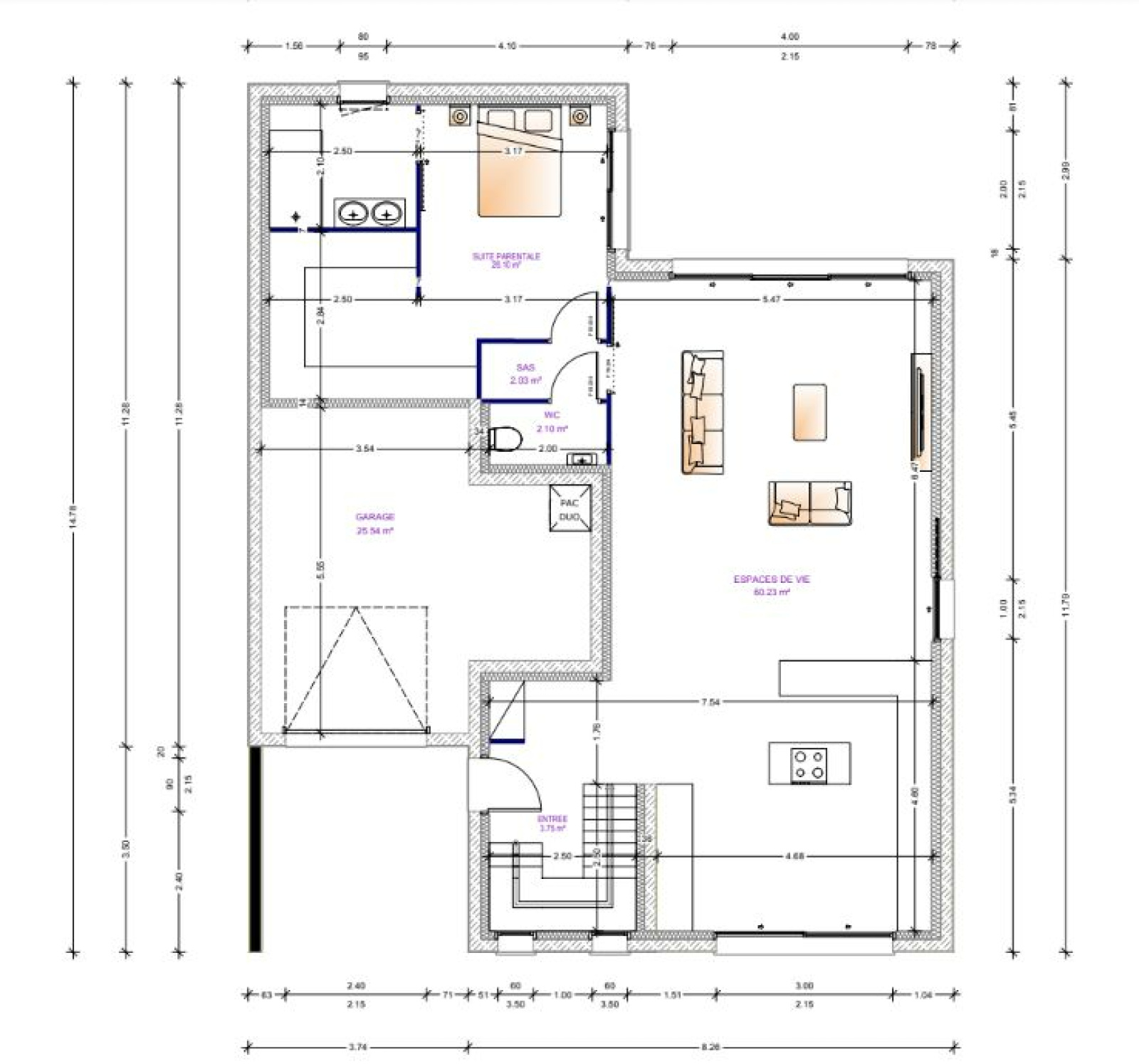
Rez de chaussée
pièce à vivre 60,20 m²

Exposition : NS,

dégagement 2,03 m²

w.c. 2,10 m²

garage 25,54 m²

dégagement 6,40 m²

buanderie 5,60 m²

salle d'eau 4,13 m²

w.c. 2,04 m²

chambre 1 14 m²

Exposition : S,

chambre 2 11,90 m²

Exposition : N,

chambre 4 11,68 m²

Exposition : N,

Energie
DPE GES
Autour du bien
  • Commerces et santé
  • Loisirs
  • Ecoles
  • Transports
  • Pratique
Contacter pour ce bien
L'agence
Téléphone 02 99 37 26 74
Adresse
3 place des Gâtes 35410 Châteaugiron

* Champ obligatoire

Les informations recueillies sur ce formulaire sont enregistrées dans un fichier informatisé par La Boite Immo agissant comme Sous-traitant du traitement pour la gestion de la clientèle/prospects de l'Agence / du Réseau qui reste Responsable du Traitement de vos Données personnelles. La base légale du traitement repose sur l'intérêt légitime de l'Agence / du Réseau. Elles sont conservées jusqu'à demande de suppression et sont destinées à l'Agence / au Réseau. Conformément à la loi « informatique et libertés », vous disposez des droits d’accès, de rectification, d’effacement, d’opposition, de limitation et de portabilité de vos données. Vous pouvez retirer votre consentement à tout moment en contactant directement l’Agence / Le Réseau. Consultez le site https://cnil.fr/fr pour plus d’informations sur vos droits. Si vous estimez, après avoir contacté l'Agence / le Réseau, que vos droits « Informatique et Libertés » ne sont pas respectés, vous pouvez adresser une réclamation à la CNIL. Nous vous informons de l’existence de la liste d'opposition au démarchage téléphonique « Bloctel », sur laquelle vous pouvez vous inscrire ici : https://www.bloctel.gouv.fr Dans le cadre de la protection des Données personnelles, nous vous invitons à ne pas inscrire de Données sensibles dans le champ de saisie libre.
Ce site est protégé par reCAPTCHA, les Politiques de Confidentialité et les Conditions d'Utilisation de Google s'appliquent.

Découvrir nos outils